好きなものに囲まれた
大切な仕事場
好きなモノを少しずつ集めてできあがった仕事場。蚤の市やアンティークショップで出会いを探しています。
見出し
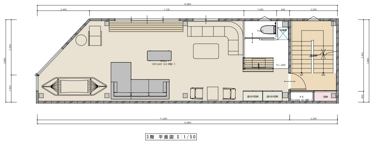
3階の間取り

好きなモノを少しずつ集めてできあがった仕事場。蚤の市やアンティークショップで出会いを探しています。
広さ: 41.02㎡(24.8帖) 階数:3階 現況:入居中
入居者:DESIGNPLUS
好きなモノを少しずつ集めてできあがった仕事場。蚤の市やアンティークショップで出会いを探しています。

好きなモノを少しずつ集めてできあがった仕事場。蚤の市やアンティークショップで出会いを探しています。